Sukmajaya
Sertifikat SHM
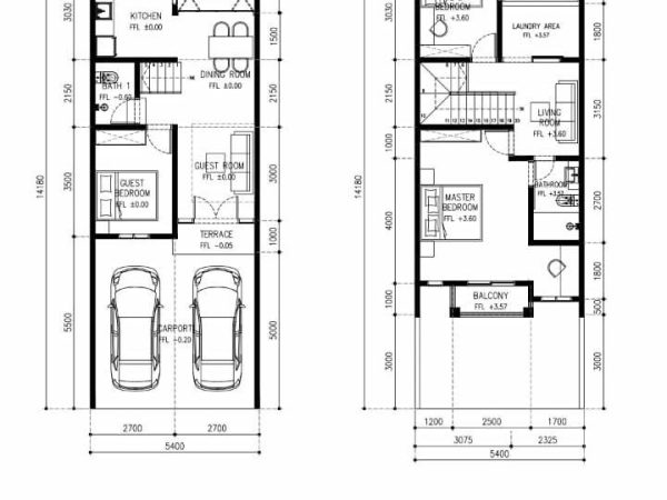
Luas Tanah 55-92 m2
Luas Bangunan m2
Lantai 2 Tingkat
Kamar Tidur 3 Buah
Kamar Mandi 2 Buah
Daya Listrik 2200 Watt
Sumber Air Sumur Bor



